Искать...
Главная
О компании
Производство
Продукция
Вся продукция
Архитектурно-художественная подсветка
Промышленное освещение
Спортивное освещение
Светодиодные светильники
Уличное освещение
Контакты, прайс-лист
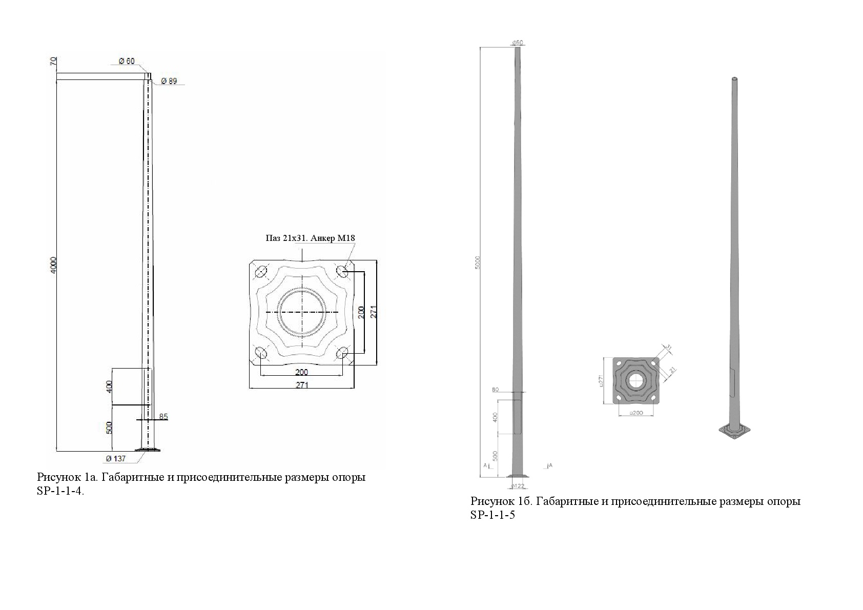
Опоры освещения
Наша продукция
Вся продукция
Уличное освещение
Архитектурно-художественная подсветка
Промышленное освещение
Освещение спортивных сооружений
Светодиодная продукция
Вы здесь:
Главная
Продукция
Опоры освещения
Контакты
info@vs-tech.ru
+7 (495) 683-39-03
Последнее добавленное
Прайс на светильники
Архитектурно-художественная подсветка
Световой столбик ПАФ
Световой столбик LEO 160
Светильник Ground Liner